제품소개 Agitator
TSFA Type
특징
- 교반목적에 따라 Hydrofoil & Paddle Impeller를 다양하게 효율적으로 선택하여 사용할 수 있으며, Solid Shaft로 제작되어 경량화 및 안정성을 높였습니다.
- 교반조내 유속을 안정화 하면서 효율이 높아야되는 무산소조, 저류조, 혐기조 등에 적합하여 폐수처리장의 저류조, 반응조, 응집조용으로 적합합니다
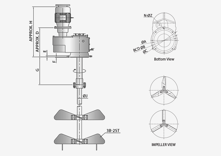
Dimension
| Model |
A |
B |
C |
D |
E |
F |
G |
H |
J |
N-ØZ |
| TSFA-035/036 |
Ø140 |
Ø170 |
Ø200 |
278 |
10 |
3 |
120 |
560 |
Ø30-Ø35 |
4-Ø10 |
| TSFA-055/056 |
Ø180 |
Ø215 |
Ø250 |
342 |
15 |
4 |
150 |
710 |
Ø40-Ø45 |
4-Ø14 |
| TSFA-065/066 |
Ø230 |
Ø265 |
Ø300 |
380 |
16 |
4 |
200 |
730 |
Ø40 -Ø50 |
6-Ø15 |
| TSFA-075/076 |
Ø250 |
Ø300 |
Ø350 |
432 |
16 |
4 |
200 |
865 |
Ø50 -Ø60 |
6-Ø15 |
| TSFA-085/085 |
Ø300 |
Ø350 |
Ø400 |
512 |
18 |
5 |
300 |
980 |
Ø65 -Ø70 |
6-Ø19 |
| TSFA-095/096 |
Ø350 |
Ø400 |
Ø450 |
560 |
22 |
5 |
300 |
1025 |
Ø75 -Ø85 |
8-Ø19 |
| TSFA-105/106 |
Ø400 |
Ø450 |
Ø500 |
618 |
25 |
5 |
300 |
1165 |
Ø90 -Ø100 |
8-Ø19 |
| TSFA-125/126 |
Ø500 |
Ø550 |
Ø600 |
458 |
25 |
5 |
600 |
1300 |
Ø105 -Ø110 |
12-Ø23 |
| TSFA-155/156 |
Ø600 |
Ø650 |
Ø700 |
516 |
30 |
6 |
600 |
1500 |
Ø120 -Ø130 |
12-Ø23 |
| TSFA-175/176 |
Ø680 |
Ø740 |
Ø800 |
840 |
40 |
6 |
600 |
1500 |
Ø140 -Ø160 |
12-Ø33 |
| TSFA-195/196 |
Ø750 |
Ø825 |
Ø900 |
970 |
45 |
7 |
600 |
1500 |
Ø170 -Ø180 |
12-Ø33 |
| TSFA-215/216 |
Ø850 |
Ø925 |
Ø1000 |
1030 |
50 |
8 |
600 |
1500 |
Ø190 -Ø210 |
12-Ø33 |
- Motor 극수는 4P/6P 기준임
- Approx. D, H : 동력에 따라서 치수 변경
- Mixing shaft & Impeller 조립볼트 체결시 Torque값 참조
- Mixing shaft & Impeller는 용도에 따라 변경될 수 있음
- 설계반영에 따라 사이즈 변경 및 제외 가능
- 감속비 1/5~1/360 가능
태우기계주식회사Taewoo Machinery Co.,Ltd.
- 서울특별시 구로구 부일로 815번길 38 (온수동 100-20)
- TEL. (02)2611-0101~5 FAX. (02)2611-0108 E-mail. tw78@tae-woo.co.kr